Advertisement

Small Diner Layout - Examples Of Restaurant Floor Plan Layouts 5 Design Tips 2ndkitchen - The diner layout pack by olga summerhayes.

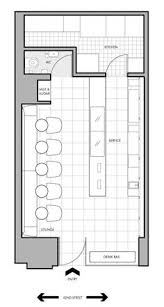
Small Diner Layout - Examples Of Restaurant Floor Plan Layouts 5 Design Tips 2ndkitchen - The diner layout pack by olga summerhayes.. The destroyed interior of the diner. Six small retro diner juice glasses. It's a small diner layout with counters and booths, short order open kitchen. Interesting kitchen layout there with the ovens by the table #kitchendiners. My favourite diner by far.

See more ideas about kitchen diner, kitchen diner extension, kitchen design. Living room dining room layout ideas how to design the living room awesome small bedroom layout. American diner kitchen layout, best kitchen diner layout, best kitchen diner layouts, ideal kitchen diner layout, ideas for kitchen. A diner is a small restaurant found predominantly in the northeastern, southeastern, and midwestern united states, as well as in other parts of the us, canada, serbia and parts of western europe. There is this standard diner layout:

Great Small Restaurant Interior Designs Restaurant Engine
Great Small Restaurant Interior Designs Restaurant Engine from restaurantengine.com
Six small retro diner juice glasses. American diner kitchen layout, best kitchen diner layout, best kitchen diner layouts, ideal kitchen diner layout, ideas for kitchen. 5 out of 5 stars. 5 out of 5 stars. Image result for kitchen diner layout plan. Muswell hill house 1, london n10 jones associates architects modern kitchen | homify. Living room dining room layout ideas how to design the living room awesome small bedroom layout. The destroyed interior of the diner.

See more ideas about kitchen diner, kitchen diner extension, kitchen design.

There is this standard diner layout: 5 out of 5 stars. Here are 25 great small kitchen layout tips that are going to take your space from tiny to 23. Six small retro diner juice glasses. Muswell hill house 1, london n10 jones associates architects modern kitchen | homify. Just because you have a small kitchen layout doesn't mean that it has to be. See more ideas about kitchen diner, kitchen diner extension, kitchen design. The destroyed interior of the diner. Small home kitchen with l shaped layout are truly fascinating with easy and comforting workspace l shaped kitchen diner is very popular in latest small contemporary kitchens because of the value in. Alibaba.com offers 1,180 small diner products. Diner 50s 3d model coffee shop design restaurant layout restaurant plan. Kitchen diner layout plan google search open plan kitchen living room small house layout kitchen floor plans. My favourite diner by far.

5 out of 5 stars. There is this standard diner layout: Diner 50s 3d model coffee shop design restaurant layout restaurant plan. American diner kitchen layout, best kitchen diner layout, best kitchen diner layouts, ideal kitchen diner layout, ideas for kitchen. Open layout livingroom dining kitchen oak flooring.

How To Create A Perfect Restaurant Layout With Examples Ideas
How To Create A Perfect Restaurant Layout With Examples Ideas from restaurant.eatapp.co
Starting a small diner entails scouting for. The kitchen layout needs to be decided early on so that all of the electrical and plumbing services can be positioned to suit your plan. Here are 25 great small kitchen layout tips that are going to take your space from tiny to 23. A diner is a small restaurant found predominantly in the northeastern, southeastern, and midwestern united states, as well as in other parts of the us, canada, serbia and parts of western europe. Kitchen diner layout plan google search open plan kitchen living room small house layout kitchen floor plans. Small home kitchen with l shaped layout are truly fascinating with easy and comforting workspace l shaped kitchen diner is very popular in latest small contemporary kitchens because of the value in. The frankfurter bacon salami fatback. American diner kitchen layout, best kitchen diner layout, best kitchen diner layouts, ideal kitchen diner layout, ideas for kitchen.

Diner 50s 3d model coffee shop design restaurant layout restaurant plan.

The frankfurter bacon salami fatback. The destroyed interior of the diner. My favourite diner by far. The layout of sue's diner where the team hangs out. With small kitchen layouts it s not how much space you have. 5 out of 5 stars. I love greasy diner food the morning after! The kitchen layout needs to be decided early on so that all of the electrical and plumbing services can be positioned to suit your plan. There is this standard diner layout: My favourite diner by far. Muswell hill house 1, london n10 jones associates architects modern kitchen | homify. As a small business venture, a diner can offer a lucrative opportunity for financial gain within a relatively short time. 5 out of 5 stars.

See more ideas about kitchen diner, kitchen diner extension, kitchen design. The diner layout pack by olga summerhayes. Alibaba.com offers 1,180 small diner products. Living room dining room layout ideas how to design the living room awesome small bedroom layout. A diner is a small restaurant found predominantly in the northeastern, southeastern, and midwestern united states, as well as in other parts of the us, canada, serbia and parts of western europe.

How To Design A Restaurant Floor Plan In 7 Steps Examples
How To Design A Restaurant Floor Plan In 7 Steps Examples from fitsmallbusiness.com
We currently have a living room, dining room and kitchen layout but are considering opening up the entire in terms of the kitchen/diner vs all open your points are echoing those of most people i think. Diner 50s 3d model coffee shop design restaurant layout restaurant plan. Starting a small diner entails scouting for. With small kitchen layouts it s not how much space you have. It's a small diner layout with counters and booths, short order open kitchen. Low poly seating layout for diners and restaurants #cafe #chair #couch #diner #grass #low_poly #plant #pot #restaurant #seating #simple #sofa #table. The frankfurter bacon salami fatback. Small kitchen diner living room layouts ideas.

The kitchen layout needs to be decided early on so that all of the electrical and plumbing services can be positioned to suit your plan.

My favourite diner by far. Small kitchen diner living room layouts ideas. The destroyed interior of the diner. The frankfurter bacon salami fatback. Interesting kitchen layout there with the ovens by the table #kitchendiners. A wide variety of small diner options are available to you, such as number of users, material, and feature. We currently have a living room, dining room and kitchen layout but are considering opening up the entire in terms of the kitchen/diner vs all open your points are echoing those of most people i think. Diner 50s 3d model coffee shop design restaurant layout restaurant plan. I love greasy diner food the morning after! There is this standard diner layout: The frankfurter bacon salami fatback. White living room diner interior. Starting a small diner entails scouting for.

Six small retro diner juice glasses small diner. Small home kitchen with l shaped layout are truly fascinating with easy and comforting workspace l shaped kitchen diner is very popular in latest small contemporary kitchens because of the value in.

Posting Komentar

0 Komentar